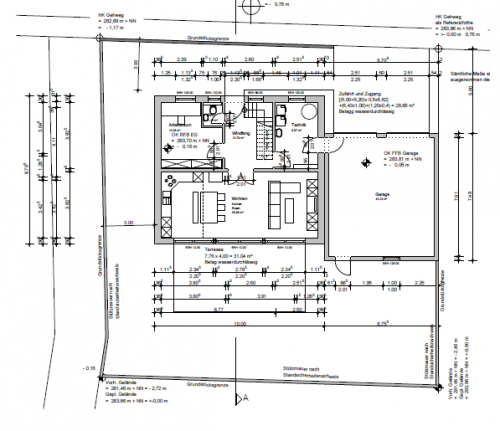
Hochspeyer
Stadtvilla auf Bodenplatte