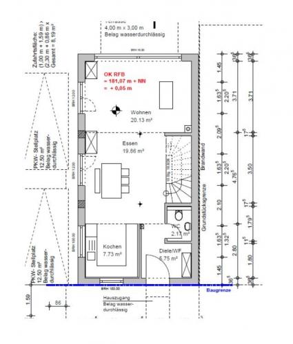
Roßdorf 8
Doppelhaushälfte mit Keller